The Client

Repeat Borrower — Experienced Real Estate Investor
• Loan Purpose
Land Purchase & Property New Construction
• Loan Structure
12 months interest only

The Investment

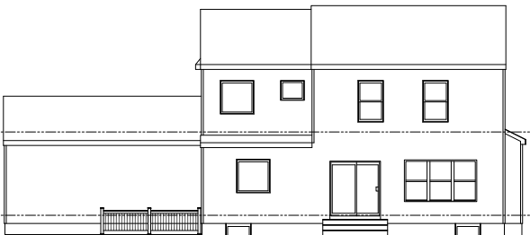
New Construction — Two Single-Family Detached
• Purchase Price
$650,000
• Renovation Budget
$1,258,600 (Construction)
• Loan Amount
$2,100,000
• Cash Available for Purchase
$841,400
• Cash Available for Renovation
$1,258,600 (Construction)

The ABL Partnership

Brick Moon Capital recently funded a hard money new construction loan in Cutchogue New York. The borrower is a repeat borrower and experienced real estate investor. The property was purchased for $1,300,000 with a construction budget of $1,258,600 and total loan funded at 82%. The proposed build is for two identical single-family homes that are each 4-bedroom, 2.5-bathroom measured at 2,600 square feet. Highlights will include mid-level finishes, hardy plank facade, shingle roof, 9-foot-high ceilings, and hardwood flooring. The kitchen will feature an open-concept design and include a center island, granite countertops, and stainless steel appliances. Bathrooms will feature dual vanities, with the master including an enclosed shower with separate tub. Construction is expected to take six months with final sale occurring shortly after project completion.

The Results

• After Repair Value
$3,200,000
• Sale Price
Back To All Case Studies