The Client

Repeat Borrower — Experienced Real Estate Investor
• Loan Purpose
Cash Out & Property New Construction
• Loan Structure
15 months interest only

The Investment

New Construction — Multifamily 7 Units
• Purchase Price
$381,000
• Renovation Budget
$1,520,400 (Construction)
• Loan Amount
$1,605,000
• Cash Available for Purchase
$84,600
• Cash Available for Renovation
$1,520,400 (Construction)

The ABL Partnership

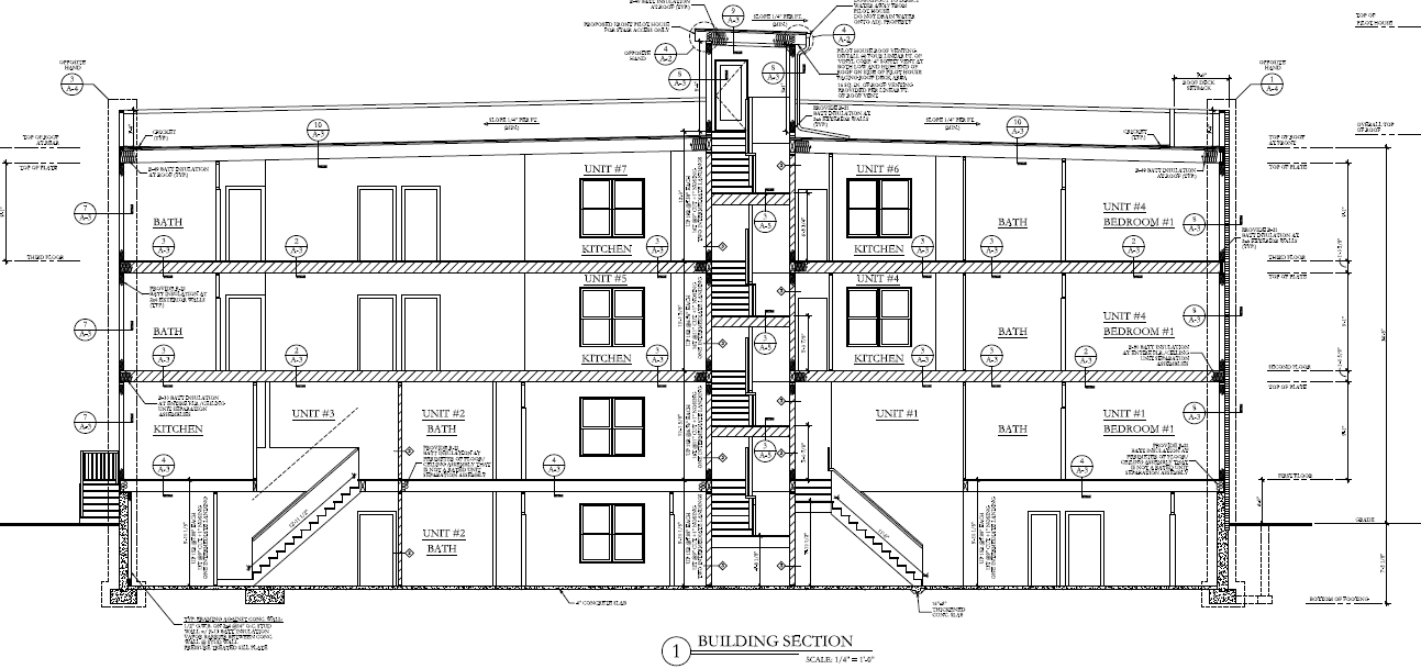
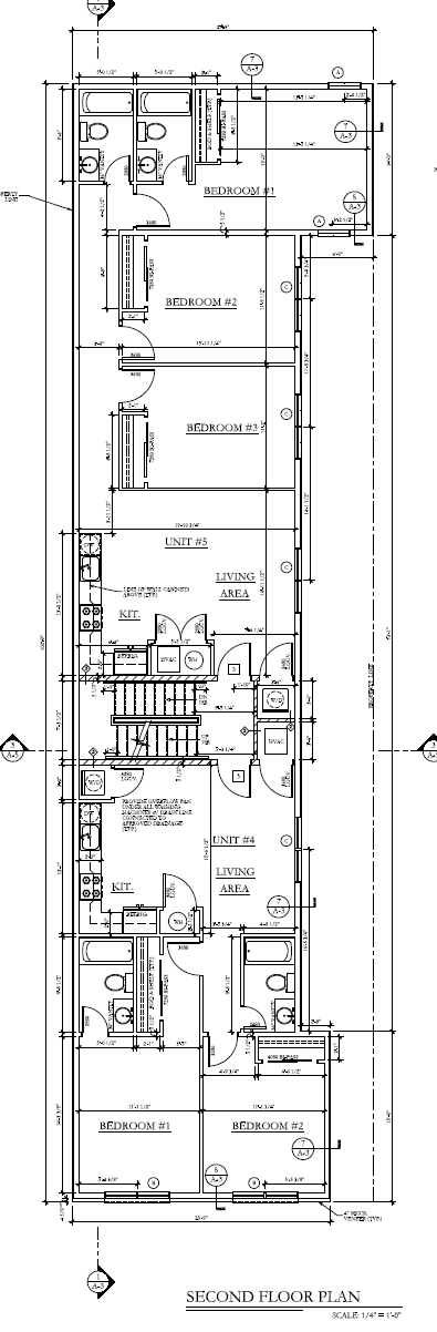
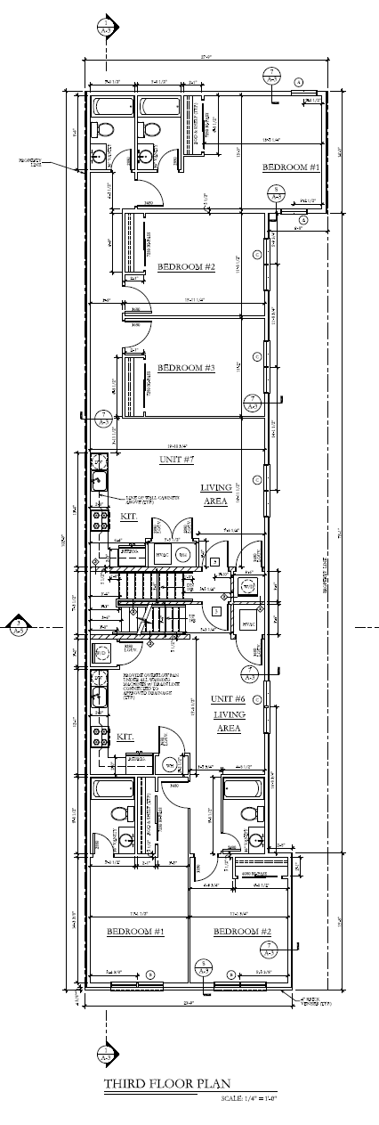
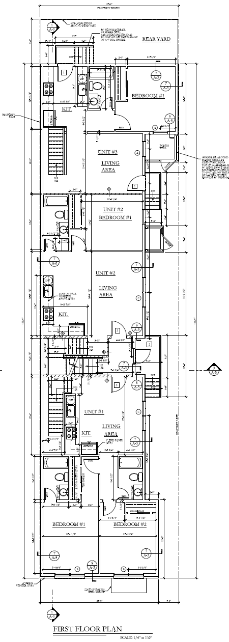
­­Brick Moon Capital recently funded a cash out and new construction project in Philadelphia Pennsylvania for a repeat borrower and experienced real estate investor. The borrower owned the land free and clear for two years before contacting ABL for a cash out and new construction loan. In that time, they were able to prepare the land, so it was shovel-ready for this project. The scope of work for this project includes constructing a four story, 7-unit apartment building. Each unit will be completed with luxury vinyl plank flooring, granite countertops in the kitchens, stainless steel appliances, and in-unit washer and dryers. Construction is expected to last 11 months, at which time the borrower will refinance this property and hold it in their real estate investment portfolio. Each unit is expected to receive around $2,550 per month.

The Results

• After Repair Value
$2,470,000
• Sale Price
Back To All Case Studies