The Client

First Time Borrower — Experienced Real Estate Developer
• Loan Purpose
Property New Construction Only
• Loan Structure
15 months interest only

The Investment

New Construction — 10 Townhomes
• Purchase Price
$850,000
• Renovation Budget
$2,615,745 (Construction)
• Loan Amount
$2,945,000
• Cash Available for Purchase
$329,255
• Cash Available for Renovation
2,615,745 (Construction)

The ABL Partnership

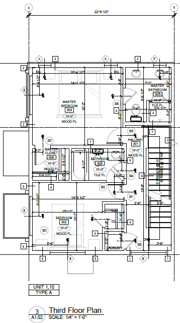
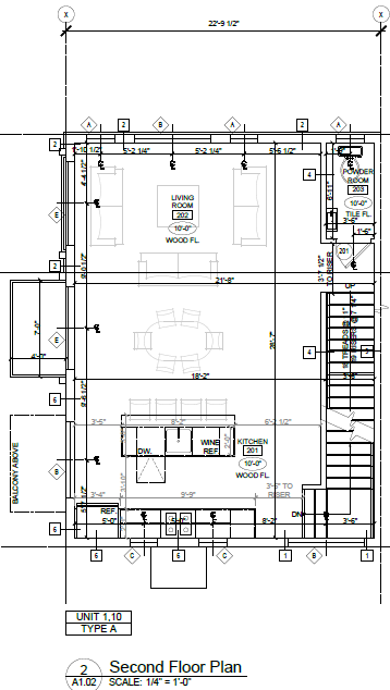
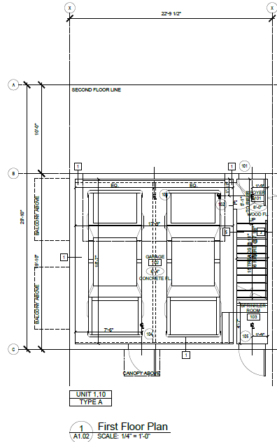
Brick Moon Capital recently funded a hard money new construction blanket loan for experienced real estate developers in Dallas Texas. This borrower came to ABL with experience having completed four townhome developments of this size around the Dallas area. The scope of work for this project includes constructing 10 attached townhomes, 6 of which will be two bedrooms and two and a half baths, and 4 will be one bedroom and one bathroom. Each unit will come with one parking spot per bedroom and an additional 2 guest spots. The borrower purchased the land and cleared it for construction with their own capital prior to securing financing. The overall construction will include high end finishings such as European style cabinets, white Calcutta quartz countertops, and high-end stainless-steel appliances. The ARV for one two-bedroom unit is approximately $621,000, and the one-bedroom unit is approximately $429,000, and the total for the entire project comes in around $5,442,000. This borrower expects to complete construction within 15 months and will list each unit for sale towards the end of the term length, given that units are close to being finished.

The Results

• After Repair Value
$5,442,000
• Sale Price
Back To All Case Studies