The Client

Repeat Borrower & Experienced Builder
• Loan Purpose
Land Purchase And New Construction
• Loan Structure
18 Months Interest Only

The Investment

New Construction – Single-Family
• Purchase Price
$526,000
• Renovation Budget
$1,251,000 (Construction)
• Loan Amount
$1,500,000
• Cash Available for Purchase
$248,500
• Cash Available for Renovation
$1,251,000 (Construction)

The ABL Partnership

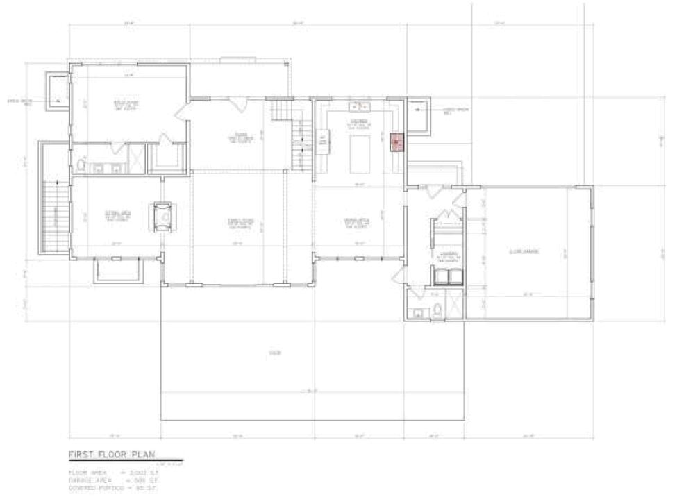
Brick Moon Capital recently funded a new construction hard money loan in Wainscott, NY. The borrower is an experienced real estate agent and builder in the Hamptons area. The property was purchased for $526,000 with a construction budget of $1,251,500 and total loan funded at 84% LTC. Home will be highlighted by a very large master suite, large family room, custom cabinets, quartz or marble countertops, 10-foot-high ceilings, sitting area with fireplace, partially finished basement, and much more. Construction time is expected to take approximately 15 months with final sale occurring shortly after project completion.

The Results

• After Repair Value
$2,750,000
• Sale Price
Back To All Case Studies