The Client

First Time Borrower — Experienced Real Estate Developer
• Loan Purpose
Cash Out Refinance & New Construction
• Loan Structure
12 months interest only

The Investment

New Construction — 5 Single Family Homes
• Purchase Price
$459,285.70
• Renovation Budget
$1,580,800 (Construction)
• Loan Amount
$1,836,000
• Cash Available for Purchase
$255,200
• Cash Available for Renovation
$1,580,800 (Construction)

The ABL Partnership

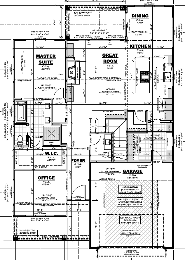
­Brick Moon Capital recently funded a cash out and new construction project in Southport North Carolina for a first-time borrower and experienced real estate investor. This borrower purchased land in cash and was able to take cash out on the property, on which they intend to build 14 single-family homes. This new construction loan covers 5 out of the 14 homes, while 2 other blanket loans cover the rest. For this blanket loan the total loan is $1,836,000 and amounts to 90% LTC. Though this is a new borrower to ABL they have a strong track record having completed more than 10 similar projects in the past 3 years. The 5 homes under this loan will use 2 different architectural plans and they both include 4 bedrooms and 3.5 bathrooms. Finishes in these homes include luxury vinyl plank flooring, quartz countertops, and GE appliances. Construction on these single-family homes is expected to take 4 months and the borrower plans to have them sold before completion.

The Results

• After Repair Value
$2,463,000
• Sale Price
Back To All Case Studies