The Client

Repeat Borrower — Experienced Real Estate Investor
• Loan Purpose
Property New Construction Only
• Loan Structure
12 months interest only

The Investment

New Construction — Single Family
• Purchase Price
$50,000
• Renovation Budget
$374,400 (Construction)
• Loan Amount
$363,000
• Cash Available for Purchase
$40,550
• Cash Available for Renovation
$322,450 (Construction)

The ABL Partnership

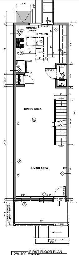
­Brick Moon Capital funded a new construction single family project in Philadelphia Pennsylvania, which is included in a portfolio loan for four properties in total. This repeat borrower has completed four new construction projects with us in the last three years and has demonstrated their expertise throughout those builds. For this project the borrower is a 2,800 square foot home with three bedrooms, one full and two half baths. This single family property will be three levels plus a basement and will be completed with mid to high end finishes. The first floor will consist of an open floor plan kitchen and living area. The kitchen will have shaker cabinets and quartz countertops. The second floor will consist of two bedrooms and laundry, and the third floor will have the primary suite and two walk in closets. The project is expected to be completed within 9 months at which time the borrower will list the property for final sale.

The Results

• After Repair Value
$538,000
• Sale Price
Back To All Case Studies