The Client

Repeat Borrower – Experienced Real Estate Investor
• Loan Purpose
Land Purchase & Property New Construction
• Loan Structure
12 Months Interest Only

The Investment

New Construction – Five-Unit Multifamily
• Purchase Price
$120,445
• Renovation Budget
$698,345 (Construction)
• Loan Amount
$735,000
• Cash Available for Purchase
$62,100
• Cash Available for Renovation
$672,900 (Construction)

The ABL Partnership

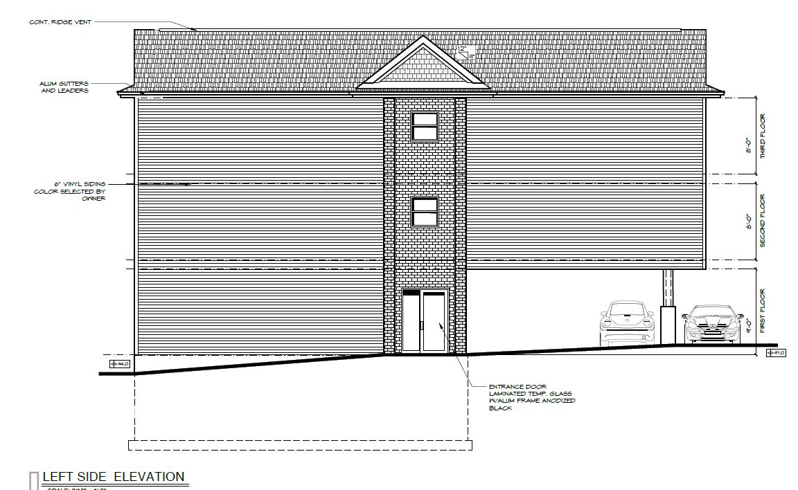
Brick Moon Capital recently funded a new construction loan in Paterson New Jersey. The borrower is a repeat borrower and experienced real estate investor. The lot was purchased for $120,445 with a construction budget of $698,345 and total loan funded at 90% LTC. The proposed build is a five-unit multifamily where each unit will be 2-bedroom, 1-bathroom measured at a combined 4,725 square feet. The borrower will hold the property as an income-producing asset with ABL’s build to rent program. Property will feature parking for up to seven cars, asphalt roof, double hung vinyl windows, and  vinyl and stucco façade. Each unit will feature 8-foot-high ceilings, hollow core doors, bathrooms with tile floors, granite vanity, and fiberglass tubs. The kitchens will be highlighted by granite counters and backsplash, custom cabinets, and stainless steel appliances. Construction is expected to take approximately six months with the loan refinancing into fixed rental loan occurring shortly after completion.

The Results

• After Repair Value
$1,355,000
• Sale Price
Back To All Case Studies