The Client

Licensed Contractor, Experienced Investor
• Loan Purpose
New Construction
• Loan Structure
12 Months Interest Only

The Investment

• Purchase Price
$125,000
• Renovation Budget
$320,000
• Loan Amount
$320,000
• Cash Available for Purchase
• Cash Available for Renovation
$320,000 (Construction)

The ABL Partnership

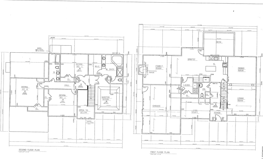
Brick Moon Capital recently closed a $320,000 hard money loan for a new construction project in Danbury, CT. These repeat borrowers plan to build a beautiful single family home using ABL’s flexible loan structure. Our investors purchased the land on their own and came to ABL to fund the construction. Their scope of work includes hardwood flooring and an expansive master bed and bath. Along with these unique features, our investors are including a living room fireplace and a large back porch to distinguish their property: increasing their chances for a quick sale. The exterior of the home will feature double door front entry and shake siding. We’re looking forward to sharing photos of the completed project!

The Results

• After Repair Value
$651,000
• Sale Price
Back To All Case Studies