The Client

Repeat Borrower — Experienced Real Estate Developer
• Loan Purpose
Cash Out Refinance & New Construction
• Loan Structure
12 months interest only

The Investment

New Construction — Single Family Detached
• Purchase Price
$600,000
• Renovation Budget
$825,000 (Construction)
• Loan Amount
$1,025,000
• Cash Available for Purchase
$200,000
• Cash Available for Renovation
$825,000 (Construction)

The ABL Partnership

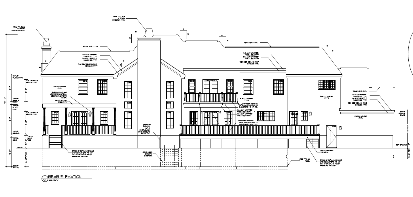
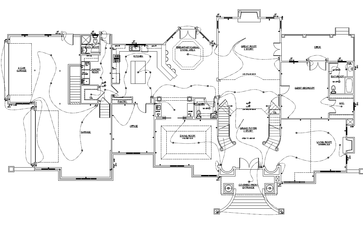
­­­Brick Moon Capital recently funded a cash out and new construction project in Millstone New Jersey for a repeat borrower and experienced real estate investor. This borrower enlisted the help of ABL to fund another a land purchase and new construction project in Monroe Township New Jersey. This borrower is a full time real estate builder and purchased the land prior to closing this loan, allowing them to take cash out on the land to begin construction. The scope of work for this project is to construct a single family detached home with 5 bedrooms and 4.5 bathrooms. There is a pre-existing foundation on this property which the investor will use to build on. The first floor of this home will have an open concept foyer, great room, and kitchen with a dining room attached. The living room will be at the front of the home while a guest bedroom with an en suite bathroom will be at the back. The first floor will also feature a laundry room, 4-car garage, and office. The second floor features the remaining bedrooms including a main suite with two walk-in closets and an oversized bathroom with a jacuzzi tub. Construction is expected to last 8 months, at which time the borrower will list the property for final sale.

The Results

• After Repair Value
$1,778,000
• Sale Price
Back To All Case Studies