The Client

First Time Borrower, Experienced Investor
• Loan Purpose
Cash Out and New Construction
• Loan Structure
12 Months Interest Only

The Investment

New Construction - Multiple Builds
• Purchase Price
$118,329
• Renovation Budget
$722,000 (Construction)
• Loan Amount
$755,000
• Cash Available for Purchase
$33,000
• Cash Available for Renovation
$722,000 (Construction)

The ABL Partnership

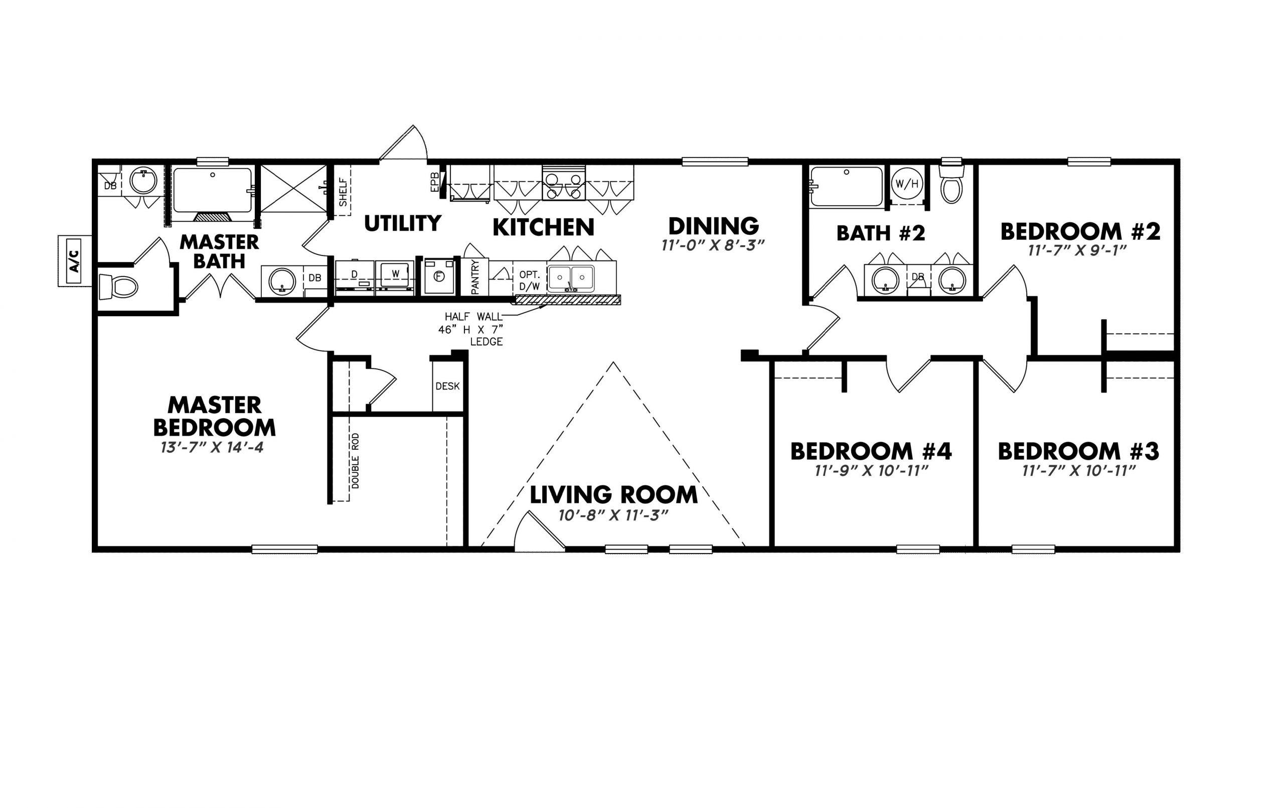
Brick Moon Capital recently funded a hard money new construction loan in Labelle Florida. The borrower is a first-time borrower and experienced builder & real estate investor. The property was purchased for $118,329 with a construction budget of $722,000 and total loan funded at 90% LTC. This deal consists of different proposed builds, with the first being four manufactured single-family homes designed as 4-bed, 2-bathroom measured at 1,622 square feet. The other build will be two modular homes designed as 4-bed, 2-bathroom measured at 1,717 square feet. These builds will feature similar layouts and use similar materials including vinyl siding, shingle roof, double pane windows, hollowed core doors, and more. Kitchens will feature craft-made cabinets, granite or quartz countertops, and mid-grade stainless steel appliances. Bathrooms will feature double sink vanity, walk-in shower, wall tile, and bathtub in master bath. Construction is expected to take four months with final sale occurring within two months of completion.

The Results

• After Repair Value
$1,139,000
• Sale Price
Back To All Case Studies