The Client

Repeat Borrower – Experienced Real Estate Investor
• Loan Purpose
Land Purchase & Property New Construction
• Loan Structure
15 Months Interest Only

The Investment

New Construction – Multifamily 2
• Purchase Price
$635,000
• Renovation Budget
$496,000 (Construction)
• Loan Amount
$1,067,000
• Cash Available for Purchase
$571,000
• Cash Available for Renovation
$496,000 (Construction)

The ABL Partnership

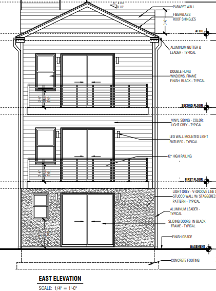
Brick Moon Capital recently funded a new construction loan in Jersey City New Jersey. The borrower is a repeat borrower and experienced real estate investor. The property was purchased for $635,000 with a construction budget of $496,000 and total loan funded at 94% LTC. The proposed build is a two-unit multifamily with one unit being 3-bedroom, 2.5-bathroom and the other unit being 3-bedroom, 2.5-bathroom for a combined 2,758 square feet. Existing property will be torn down and replaced with new ground up construction with identical plans to a previous project from this borrower. Due to the borrower’s good standing with ABL and project intensity, this loan was granted a 15-month extended loan instead of the typical 12-month new construction loan. Property will feature high-end finishes, Anderson windows, 10-foot-high ceilings, hardwood floors, and solid wood doors. Kitchens will be highlighted by high-end stainless steel appliances, quartz or granite countertops, and backsplash. The bathrooms will feature enclosed showers with hanging vanity. Project is expected to take 10 months for construction with final sale occurring within two months of completion.

The Results

• After Repair Value
$1,687,000
• Sale Price
Back To All Case Studies