The Client

Repeat Borrower – Full-Time Real Investor
• Loan Purpose
Property Purchase & Rehabilitation
• Loan Structure
18 Months Interest Only

The Investment

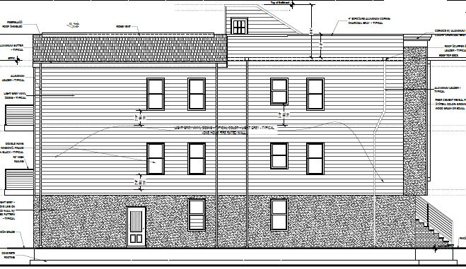
Demolish & Rebuild – Condo Multi-Unit
• Purchase Price
$677,000
• Renovation Budget
$475,500
• Loan Amount
$949,000
• Cash Available for Purchase
$473,500
• Cash Available for Renovation
$475,500

The ABL Partnership

Brick Moon Capital recently funded a fix and flip loan in Jersey City New Jersey. The borrower is a repeat borrower and full-time real estate investor. Due to the borrower’s experience level and ongoing relationship with ABL, they were granted an extended 18-month loan instead of the typical 12 months. The property was purchased for $677,000 with a renovation budget of $475,500 and total loan funded at 82% LTC. The existing property will be demolished and become a two-unit or three-unit condo depending on permits. Each unit will be 3-bedroom, 2-bathroom measured at a total 4,422 square feet. Units will receive high-end finishes and feature hardwood floors, 10-foot-high ceilings, large open-window façade, and new appliances in the kitchens. Renovation is expected to take between eight and ten months with final sale occurring within two months of project completion.

The Results

• After Repair Value
$1,467,000
• Sale Price
Back To All Case Studies