The Client

Experienced Investor
• Loan Purpose
Land Purchase And New Construction
• Loan Structure
12 Months Interest Only

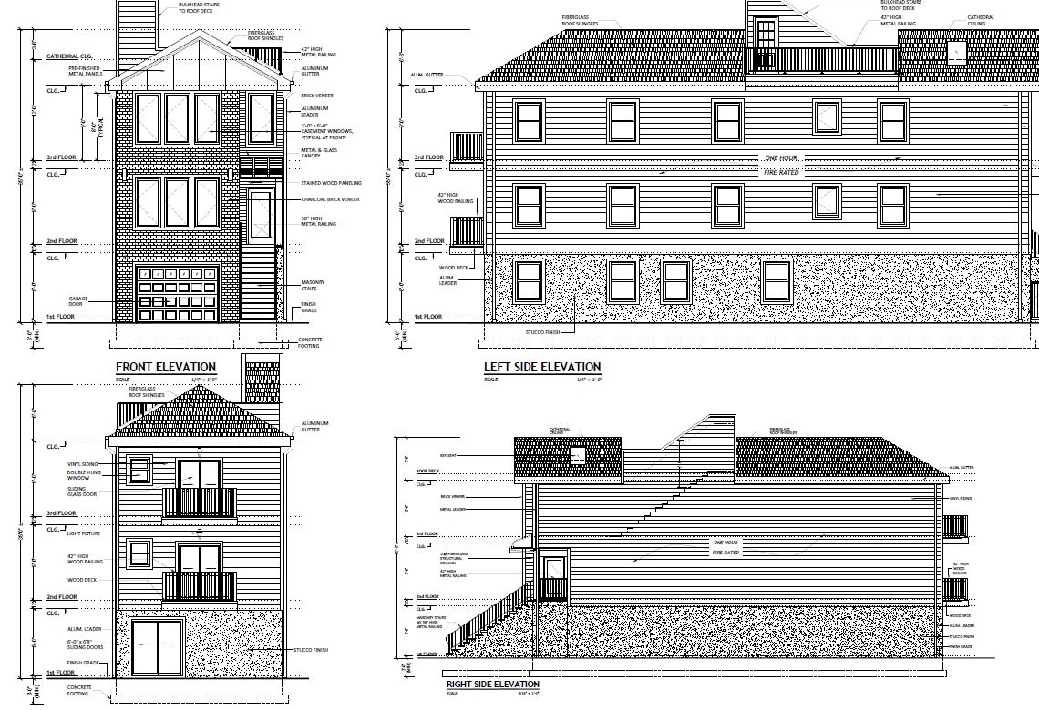
The Investment

New Construction - 2 Unit Condo
• Purchase Price
$563,650
• Renovation Budget
$370,000
• Loan Amount
$703,000
• Cash Available for Purchase
$338,000
• Cash Available for Renovation
$370,000

The ABL Partnership

This repeat borrower is partnered with a builder who has completed hundreds of projects as well as two other experienced flippers and new construction investors. It will take nine to ten months to complete the construction of both units and they will be decked out with high end finishes, plus a roof deck and garage. With so much experience under their belts, this investing team is sure to succeed.

The Results

• After Repair Value
$1,432,000
• Sale Price
Back To All Case Studies