The Client

Experienced Investor & Builder
• Loan Purpose
Land Purchase And New Construction
• Loan Structure
12 Months Interest Only

The Investment

New Construction - Luxury Single Family
• Purchase Price
$1,147,000
• Renovation Budget
$1,200,000 (Construction)
• Loan Amount
$1,941,000
• Cash Available for Purchase
$741,000
• Cash Available for Renovation
$1,200,000 (Construction)

The ABL Partnership

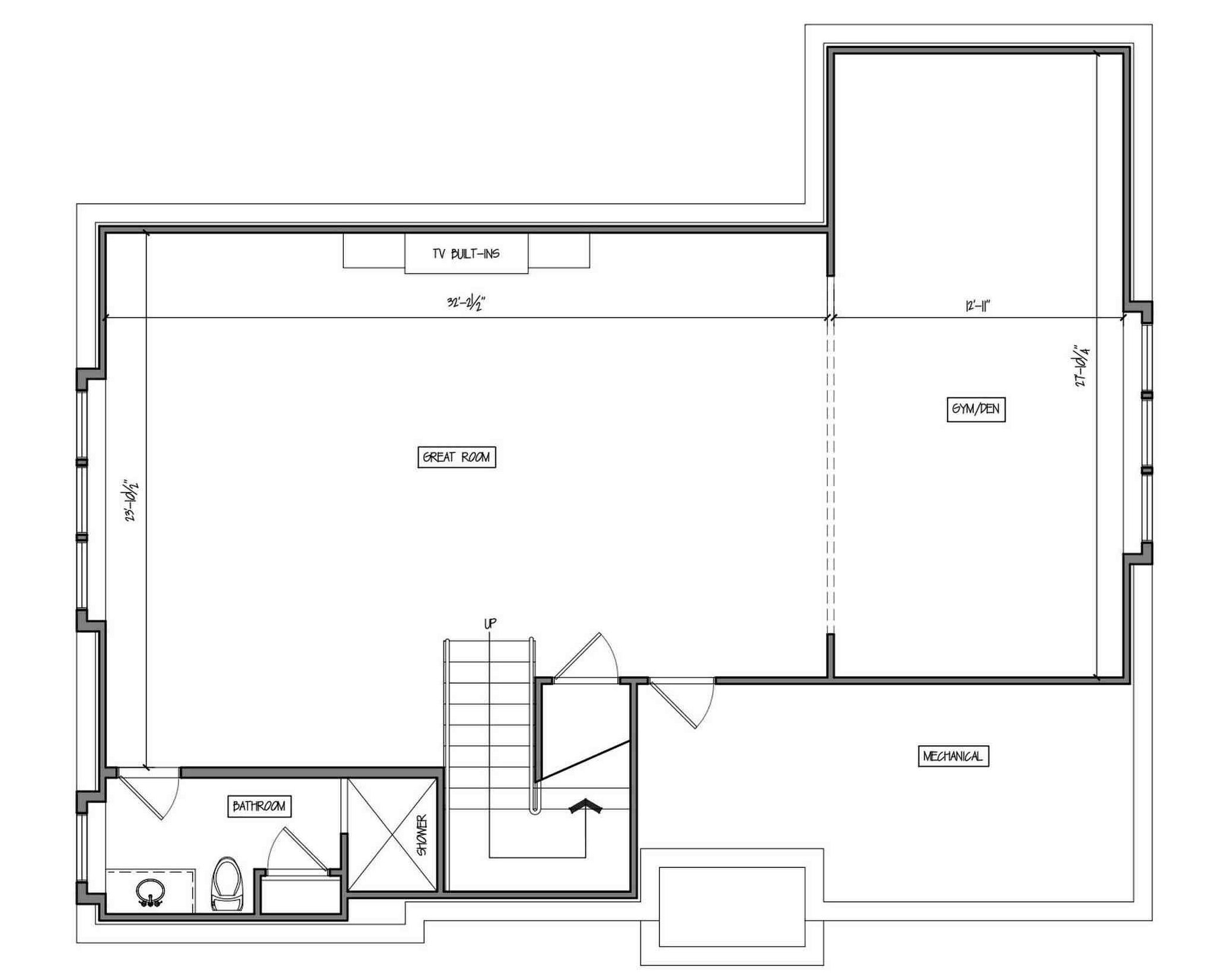
Brick Moon Capital recently funded a hard money new construction loan in Newport Rhode Island. The borrower is an experienced builder and real estate investor that is working with Brick Moon Capital for the first time after working with other New England hard money lenders. The parcel of land was purchased for $1,147,000 with a construction budget of $1,200,000 and total loan funded at nearly 83% LTC. The plans for this home are a single-family detached 4-bedroom, 4.5-bath measured at 3800 square feet. The borrower has built similar high-end luxury homes in the area, specializing in beautiful custom finishes. The land is in an attractive location, within walking distance to the town and to the beach. Some of the build highlights include a home gym, two master bedrooms, uniquely designed bathrooms, uncovered balcony, and much more. Construction time is expected to take approximately 9 months and is likely to be pre-sold, as the borrower’s recent builds have pre-sold as well.

The Results

• After Repair Value
$3,400,000
• Sale Price
Back To All Case Studies