The Client

First Time Borrower, Experienced Investor
• Loan Purpose
Cash Out And New Construction
• Loan Structure
12 Months Interest Only

The Investment

New Construction – Single-Family
• Purchase Price
$250,000
• Renovation Budget
$300,000
• Loan Amount
$450,000
• Cash Available for Purchase
$150,000
• Cash Available for Renovation
$300,000

The ABL Partnership

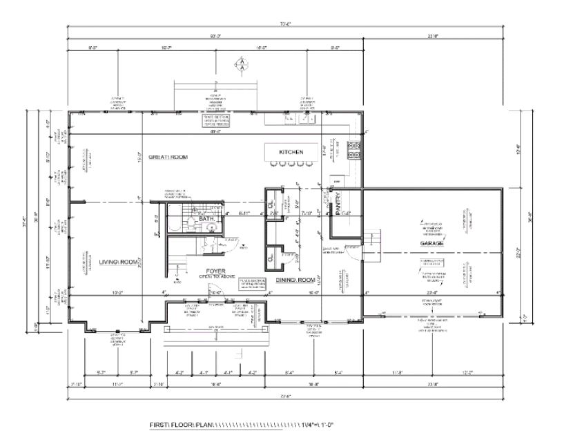
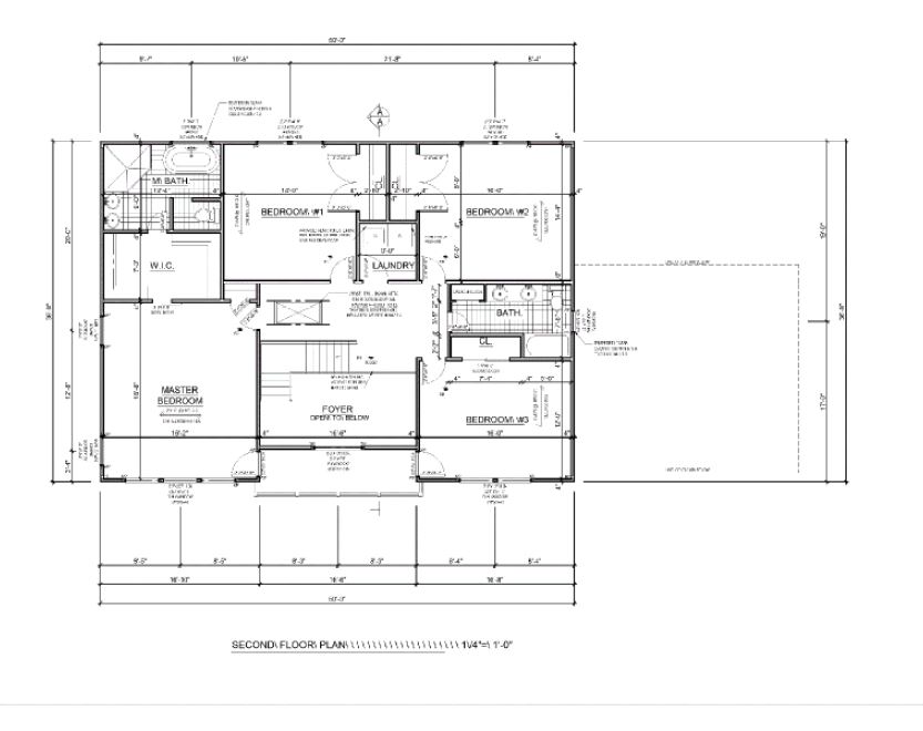
Brick Moon Capital recently funded a cash out and new construction hard money loan in East Islip, New York. The borrower is an experienced real estate investor and developer that has built this same home model before. The property was purchased for $250,000 with a construction budget of $300,000 and total loan funded at nearly 82% LTC. This proposed build is a single family 4-bedroom, 2.5-bathroom measured at a total square footage of 4,500. The home will be built with mid-grade finishes and take approximately six months to complete, with final sale occurring ASAP after completion.

The Results

• After Repair Value
$920,000
• Sale Price
Back To All Case Studies