The Client

Repeat Borrower — Experienced Real Estate Developer
• Loan Purpose
Refinance & New Construction
• Loan Structure
12 months interest only

The Investment

New Construction — Single Family
• Purchase Price
$304,000
• Renovation Budget
$1,870,000 (Construction)
• Loan Amount
$1,956,000
• Cash Available for Purchase
$315,275
• Cash Available for Renovation
$1,640,725 (Construction)

The ABL Partnership

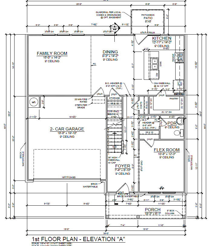
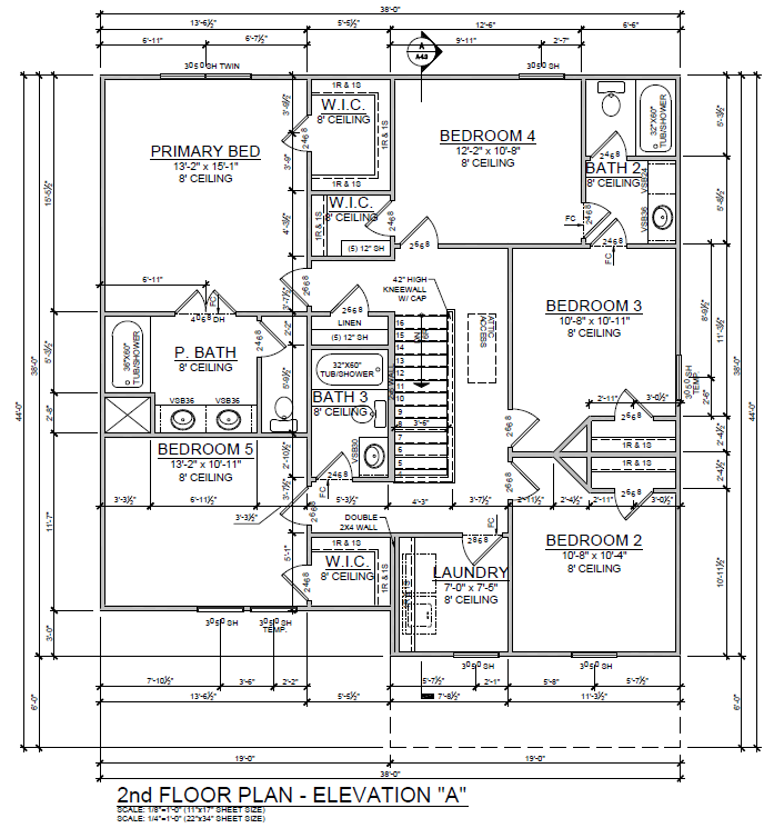
Brick Moon Capital recently funded loan refinance and new construction loan for a repeat borrower in Covington Georgia. This loan is contributing to the borrower’s plans to build a 52-unit subdivision in Covington GA. Prior to contact ABL for funding on this new construction project, the borrower completed the requirements to subdivide the land and complete any necessary horizontal construction. This loan covers one 2,300 square foot, 5-bedroom, 3.5-bathroom property. This property will be finished with cedar siding on the exterior, luxury vinyl flooring throughout the property, open concept kitchen and living area, and stainless-steel appliances. Construction is expected to last 10 months, at which time the borrower will refinance and hold this property in their portfolio as a rental.

The Results

• After Repair Value
$2,801,000
• Sale Price
Back To All Case Studies