The Client

First Time Borrower — Experienced Real Estate Investor
• Loan Purpose
Property New Construction Only
• Loan Structure
12 months interest only

The Investment

New Construction — Single Family
• Purchase Price
$54,600
• Renovation Budget
$428,000 (Construction)
• Loan Amount
$428,000
• Cash Available for Purchase
$0
• Cash Available for Renovation
$428,000 (Construction)

The ABL Partnership

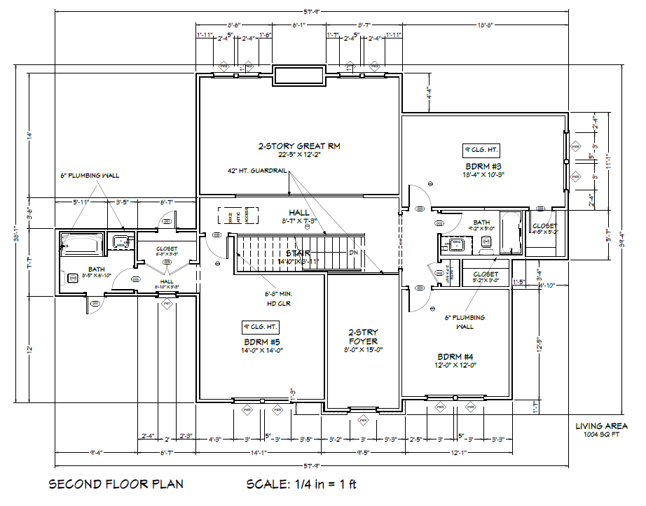
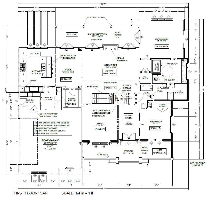
Brick Moon Capital funded a new construction single family project in Conyers Georgia. The real estate investors are borrowing for the first time with ABL but they are experienced investors and have completed seven new builds in the last three years, and have built this style of home previously. This is a center hall colonial project which will have five bedrooms and four bathrooms, totaling 3,200 square feet. This home will be a classic colonial layout with a dining room on one side of the foyer and study on the other. The primary suite is on the ground floor off the great room, both of which have access to the covered patio in the rear of the home. All the finishes in the home will be above mid-grade with quartz countertops in the kitchen and bathrooms. The homeowner’s association in this area requires at least three sides of the exterior of the home to be finished with brick and the remainder will be finished with siding. The borrowers expect this project to be completed in approximately eight months, at which time the home will be listed for final sale.

The Results

• After Repair Value
$625,000
• Sale Price
Back To All Case Studies