The Client

Repeat Borrower & Experienced Investor
• Loan Purpose
Land Purchase And New Construction
• Loan Structure
12 Months Interest Only

The Investment

New Construction - Single Family
• Purchase Price
$175,000
• Renovation Budget
$315,000 (Construction)
• Loan Amount
$416,000
• Cash Available for Purchase
$101,000
• Cash Available for Renovation
$315,000 (Construction)

The ABL Partnership

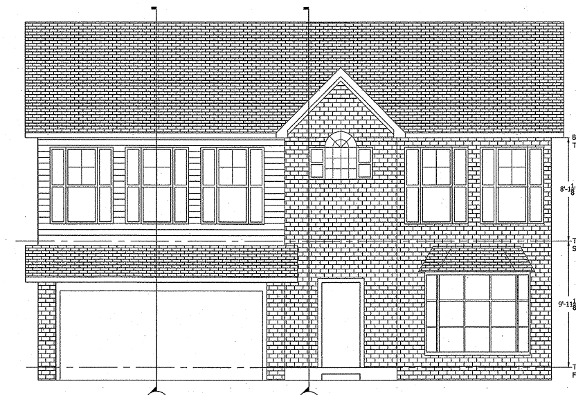
Brick Moon Capital recently funded a hard money new construction loan in Columbia Maryland for a repeat borrower with extensive real estate investing experience. The parcel of land was purchased for $175,000 with a construction budget of $315,000 and total loan funded at 85% LTC. The borrower has a large real estate rental portfolio and wanted to invest in the hot new construction market, with plans to secure upwards of 10 more deals in 2021. This will be the 6th identical build that the borrower has used for new construction, which is a 3500 square foot 5-bedroom, 5-bath with a fully finished basement. This two-story Colonial home will have an open concept with 9-foot high ceilings with hardwood floors on the 1st level and carpeted floors on the 2nd level. Kitchen will be slightly above mid-grade with granite counters and island table. The bathrooms will have differing styles and the full construction time is expected to take four months.

The Results

• After Repair Value
$650,000
• Sale Price
Back To All Case Studies