The Client

Experienced Investor & Builder
• Loan Purpose
Cash Out & New Construction
• Loan Structure
12 Months Interest Only

The Investment

New Construction - Single Family
• Purchase Price
$14,500
• Renovation Budget
$137,400
• Loan Amount
$117,000
• Cash Available for Purchase
$7,000
• Cash Available for Renovation
$110,000

The ABL Partnership

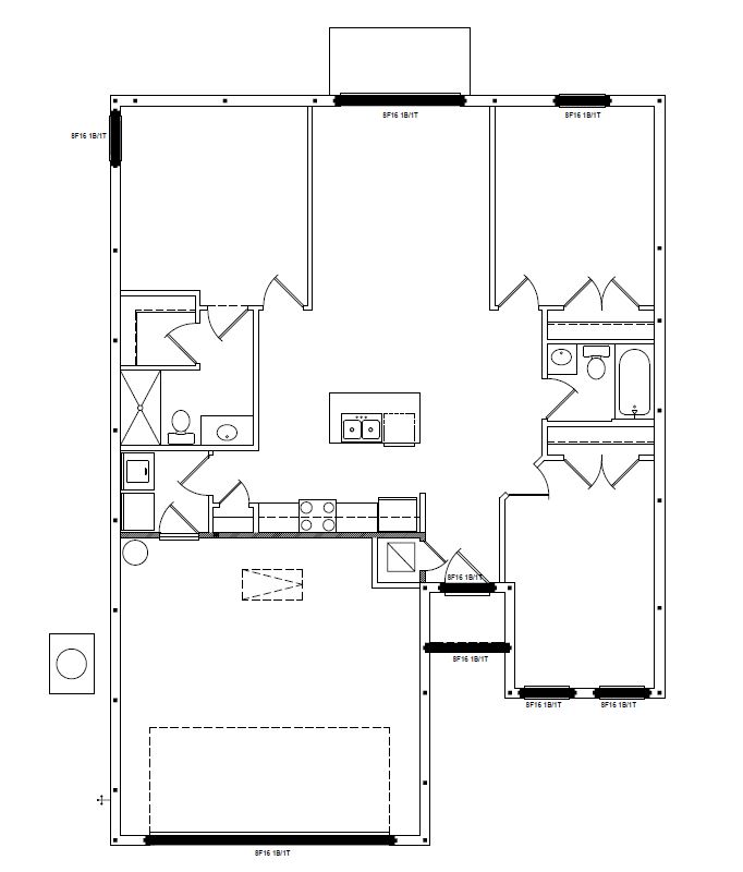
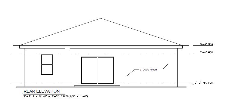
Brick Moon Capital recently financed a cash out and new construction hard money loan for an experienced builder in Poinciana, Florida. The real estate investor purchased the lot in cash, and came to ABL for the construction financing. The subject build will be a 1,680 sqft 3 bed / 2 bath single family home, expected to take 3-4 months to build and 2 months to sell.

The Results

• After Repair Value
$188,900
• Sale Price
Back To All Case Studies