The Client

Repeat Borrower & Experienced Investor
• Loan Purpose
Land Purchase And New Construction
• Loan Structure
12 Months Interest Only

The Investment

New Construction – Single-Family
• Purchase Price
$250,000
• Renovation Budget
$451,069 (Construction)
• Loan Amount
$595,000
• Cash Available for Purchase
$143,931
• Cash Available for Renovation
$451,069 (Construction)

The ABL Partnership

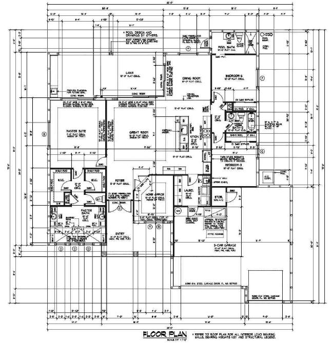
Brick Moon Capital recently funded a new construction hard money loan in Cape Coral Florida. The borrower is a repeat borrower and experienced builder & investor. The property was purchased for $250,000 with a construction budget of $451,069 and total loan funded at 85% LTC. The proposed build is a 3-bedroom, 2-bathroom with a total square footage of 3567 ft.² with 2162 ft.² under air and has direct gulf access. Home will be highlighted with high-grade finishes, 10-foot-high ceilings, tile floors throughout, and upscale kitchen and baths. Kitchen will feature wine bar, granite counters, shaker cabinets, and high-level appliances. Bath will feature granite counters, high-quality wall tiles, and stand-up showers with rainfall shower heads. Project is expected to take between five and six months with final sale occurring before completion.

The Results

• After Repair Value
$1,020,000
• Sale Price
Back To All Case Studies