The Client

• Loan Purpose
Refinance And New Construction
• Loan Structure
12 months interest only

The Investment

• Purchase Price
• Renovation Budget
• Loan Amount
$300,000
• Cash Available for Purchase
$25,000
• Cash Available for Renovation
$275,000

The ABL Partnership

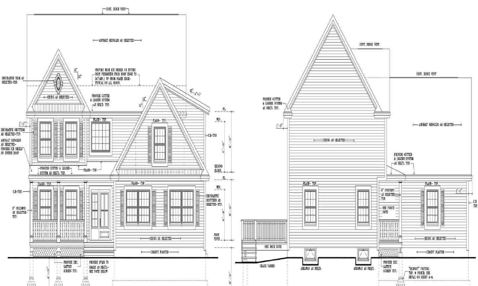
ABL just recently closed a $300,000 hard money loan to assist our experienced investors in financing a new construction project in Budd Lake, NJ. Their extensive plans include building a four bedroom, two and a half bath, fully loaded, 3000 square foot home on 5 acres of land! We can’t wait to see the end result when the brand-new home is move-in ready!

The Results

• After Repair Value
$570,000
• Sale Price
Back To All Case Studies