The Client

First-Time Borrower — Experienced Real Estate Investor
• Loan Purpose
Land Purchase & Property New Construction
• Loan Structure
12 months interest only

The Investment

New Construction — Single-Family Detached
• Purchase Price
$250,000
• Renovation Budget
$550,000 (Construction)
• Loan Amount
$680,000
• Cash Available for Purchase
$130,000
• Cash Available for Renovation
$550,000 (Construction)

The ABL Partnership

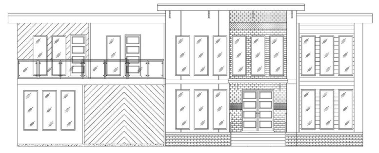
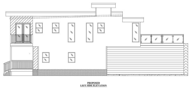
Brick Moon Capital recently funded a hard money new construction loan in Atlanta Georgia. The borrower is a first-time borrower and experienced real estate investor. The property was purchased for $250,000 with a construction budget of $550,000 with total loan funded at 85% LTC. The proposed build is for a single-family 5-bedroom, 5.5-bathroom measured at a total 5,759 square feet. The home will feature high-end finishes with a brick veneer facade. Highlights will include 10-foot-high ceilings, solid core doors, mix of wood and tile flooring, double hung windows, and crown molding. Kitchen will be open concept with a bar area and include an island, quartz countertops, soft-close cabinets, and stainless steel appliances. Master bedroom will feature tray ceilings, dual vanities, walk-in closet, and access to private deck. Construction is expected to take between four and six months with final sale occurring shortly after completion.

The Results

• After Repair Value
$1,400,000
• Sale Price
Back To All Case Studies