The Client

Repeat Borrower — Real Estate Developer
• Loan Purpose
Cash Out & New Construction
• Loan Structure
12 months interest only

The Investment

New Construction — Duplex
• Purchase Price
$412,000
• Renovation Budget
$595,875 (Construction)
• Loan Amount
$856,000
• Cash Available for Purchase
$296,000
• Cash Available for Renovation
$560,000 (Construction)

The ABL Partnership

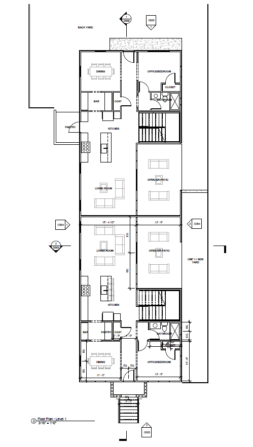
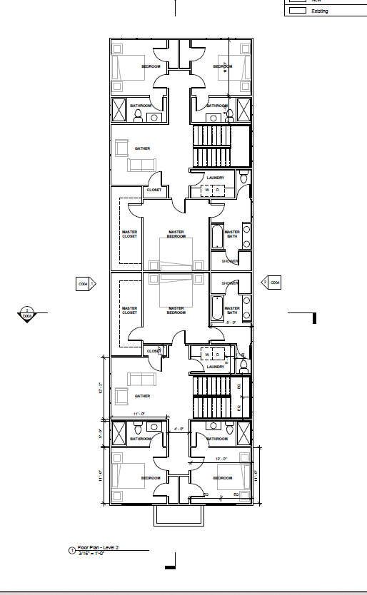
Brick Moon Capital recently funded a new construction loan for a repeat borrower and experienced real estate developer in Atlanta Georgia. This borrower purchased the land and owned it free and clear prior to contacting ABL for the new construction loan. For this project, the borrower will clear the land for development and construct a duplex, both with four bedrooms and four bathrooms. The first floor of each unit will consist of a bathroom, the dining and kitchen area featuring a pantry, and one bedroom that can also be used as an office. The kitchen will be finished with European style cabinets, quartz countertops, and island, and Samsung appliances. The second floor will have a family room, two bedrooms and the main bedroom each with its own bathroom, and a laundry area. The main bathroom will feature a soaking tub and double vanity. Hardwood flooring will be installed throughout the home and the exterior will be completed with stone veneer accents. This project is expected to take around 8 months at which time the borrower will list the property for final sale.

The Results

• After Repair Value
$1,600,000
• Sale Price
Back To All Case Studies